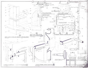
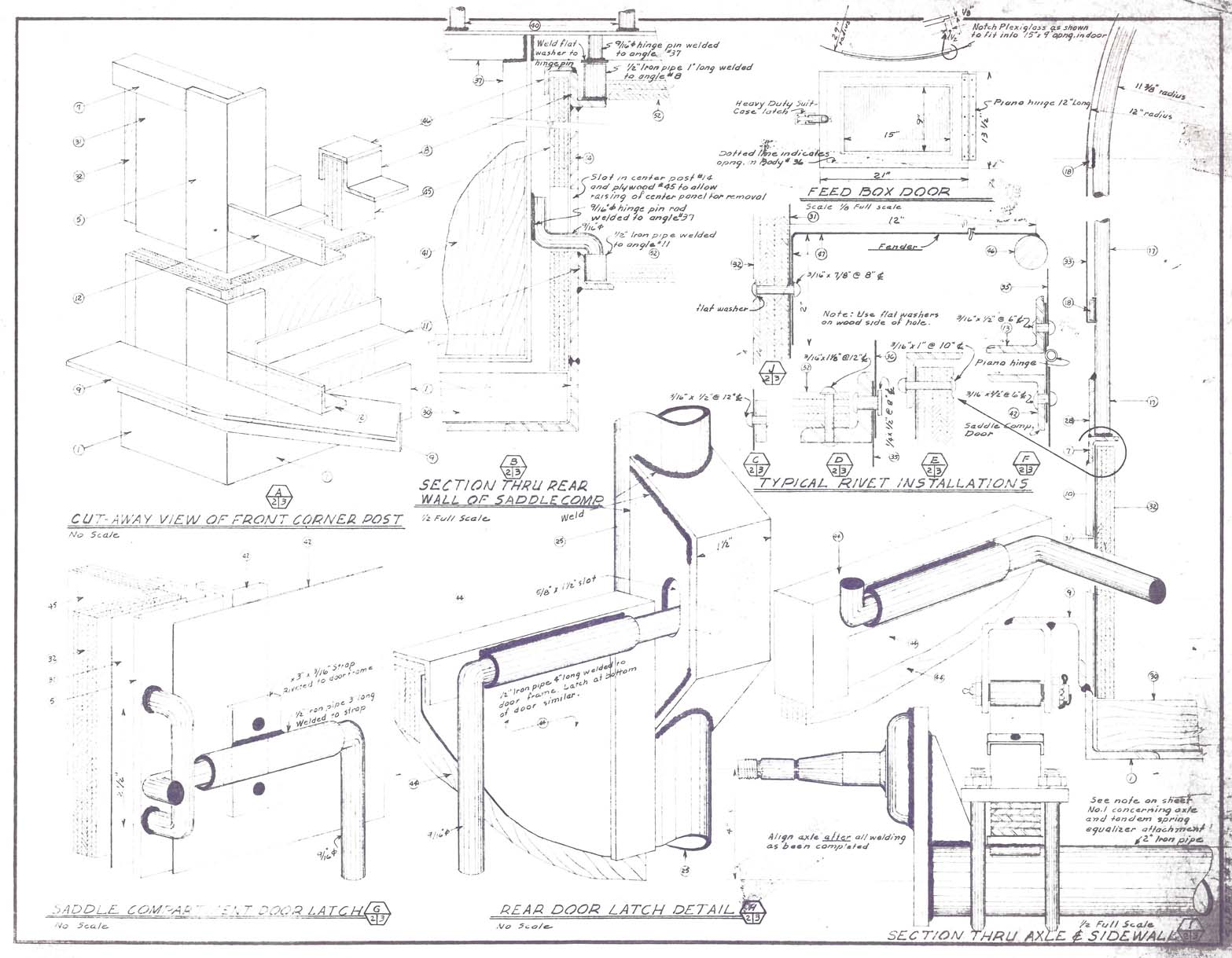
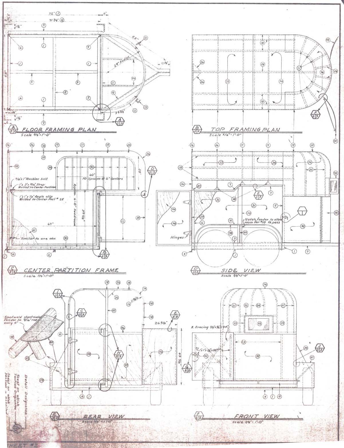
Elmer Gaeddert's
Horse Trailer Plans
Thousand Sold in the 1960's in Western Horseman Magazine

Sheet 1

Sheet 2

Sheet 3

Sheet 4

Memorial

PortaShop PDF

 

Back